Static overlay

Where Heritage Meets Cosmopolitan Living in the Heart of District 15.

The Pinnacle of Peaceful Living, Perfected in Nature’s Embrace

Target Preview Date – 1st August 2025

SPringleaf residence
Green Views,
Urban Access

*Images used are for illustrative purposes only.
Amidst the verdant charm of a heritage-rich enclave, a rare sanctuary emerges—crafted for those who seek stillness without compromise. With 941 refined homes and sweeping green views, Springleaf Residence offers direct sheltered access to Springleaf MRT and quiet elegance. Here, nature, history, and modernity converge to create a life beautifully in balance.
*Images used are for illustration purpose only.
Springleaf Residence is surrounded by abundant greenery, offering residents a serene living environment. Adjacent to Springleaf Forest and near Upper Seletar Reservoir Park, the development enjoys lush landscapes, natural vegetation, and rich biodiversity. Its unique location provides unobstructed panoramic views of nature, creating a tranquil retreat within an established residential estate.

Convenience Meets
Comfort at Springleaf

Springleaf Residence benefits from a prime location with seamless connectivity and excellent amenities. Situated just a 2-minute sheltered walk from Springleaf MRT on the Thomson‑East Coast Line, it offers convenient travel. Nearby Springleaf Eateries, Springleaf Nature Park, Brook Village, Lentor Modern Mall and Thomson Plaza enrich daily living options.
Connectivity
Springleaf MRT (TEL)
2-min Walk
Seletar Expressway (SLE)
3-min Drive
Tampines Expressway (TPE)
7-min Drive
SHOP AND DINE
Springleaf Eateries
2-min Walk
Brooks Village
3-min Drive
Lentor Modern Mall
10-min Drive
Thomson Plaza
13-min Drive
AMK Hub
14-min Drive
Northpoint
14-min Drive
Orchard Road
21-min Drive
Jewel Changi Airport
24-min Drive
PARKS
Springleaf Garden Park
8-min Walk
Springleaf Nature Park
9-min Walk
Upper Seletar Reservoir Park
4-min Drive
Thomson Nature Park
8-min Drive
The ECA House
*Images used are for illustration purpose only.
900
Units
0
Blocks
0
Year Leasehold
0
T.O.P
Springleaf Residence
Address
811, 813, 815, 817, 819, 821 Upper Thomson Road
Nearest MRT
Springleaf MRT
Region
North
District
District 26
Carpark Lots
759 Lots
Bicycle Lots
236 Lots
Architect
ADDP Architects LLP
Main Contractor
China Construction (South Pacific)
Running Track (125m)
*Images used are for illustration purpose only.
Over 50 exciting facilities

Tranquil Living with Modern Comforts

Step into a resort-style sanctuary embraced by nature’s calm. Wander through the elegant Arrival Court and Heritage Walk to discover lush pools, serene lounges, and vibrant spaces like the Forest Club and Celebrities’ Kitchen. With over 50 wellness and leisure facilities, every moment invites rejuvenation, connection, and carefree indulgence.
The Cocoons
*Images used are for illustration purpose only.

Refined Living at Springleaf Residence

Springleaf Residence presents a harmonious blend of sophistication and functionality, with meticulously designed layouts that enhance everyday living. Each unit showcases quality craftsmanship, elegant finishes, and premium fittings, offering a refined yet practical home surrounded by nature and tranquillity.

SITE PLAN & UNIT MIX

Blk 811 813 815 817 819
2 Bedroom Basic
117
Units
527 sqft
2 Bedroom STANDARD
215
Units
646 sqft
3 Bedroom BASIC
164
Units
786 / 818 sqft
3 Bedroom STANDARD
121
Units
904 / 926 / 958 sqft
3 BEDROOM PLUS
83
Units
1,023 / 1,076 sqft
4 Bedroom
138
Units
1,227 sqft
5 Bedroom
71
Units
1,453 / 1,475 sqft
BLK 821 CONSERVED BUILDING
1 BEDROOM
8
Units
388 sqft
2 BEDROOM
8
Units
592 sqft
3 BEDROOM
8
Units
1,119 sqft
3 Bedroom + Balcony
8
Units
1,259 sqft
SPA POOL
*Images used are for illustration purpose only.

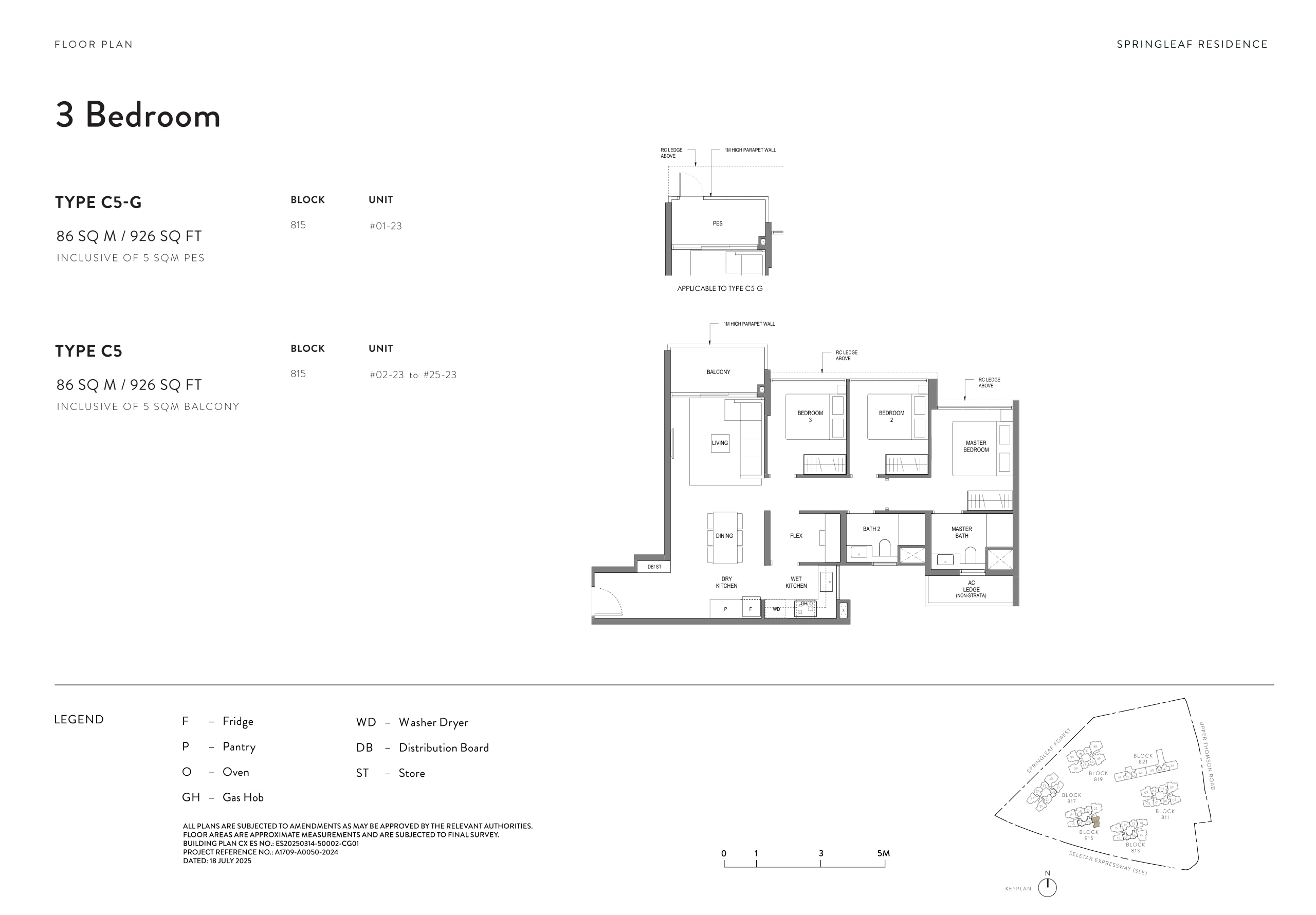
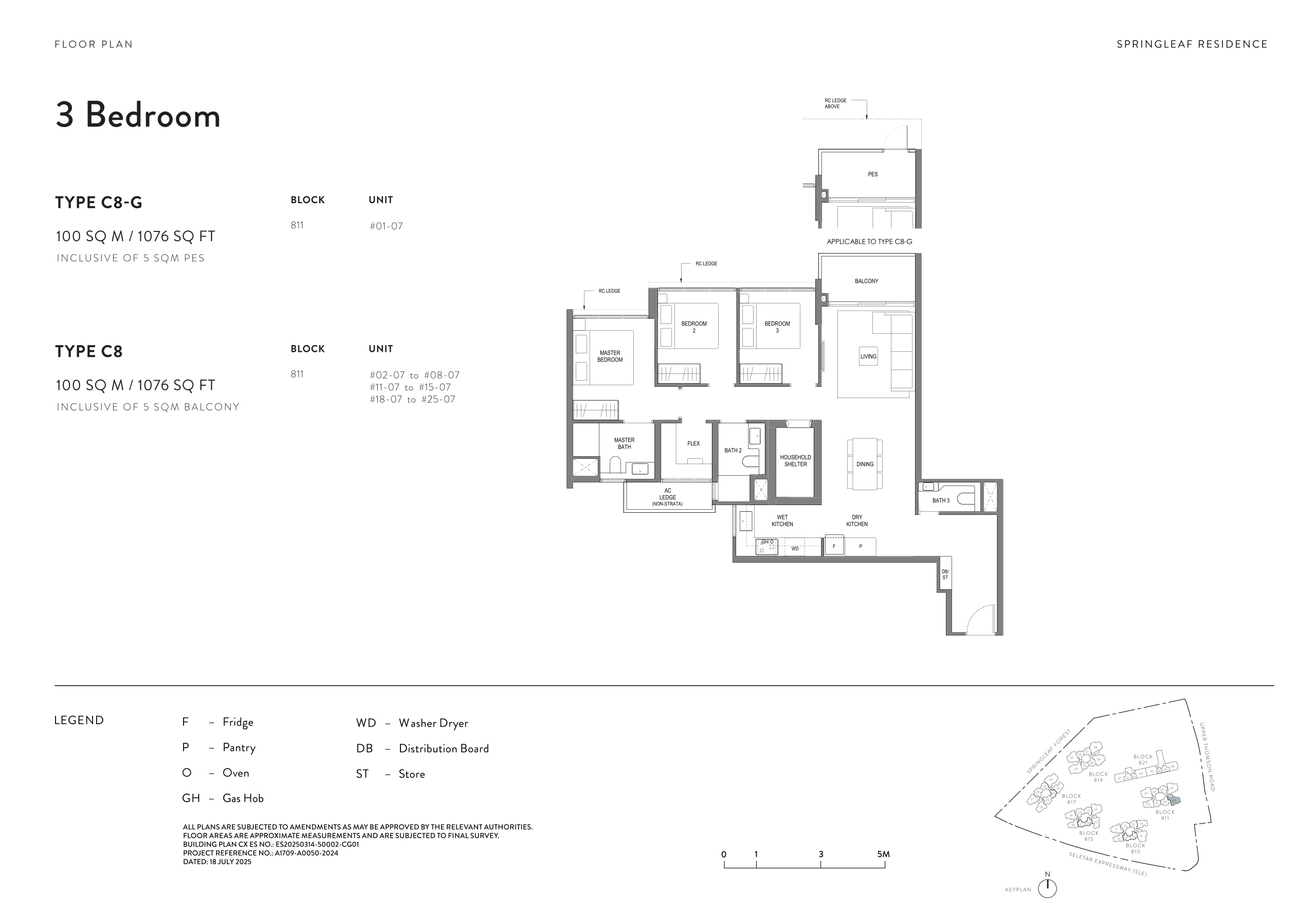
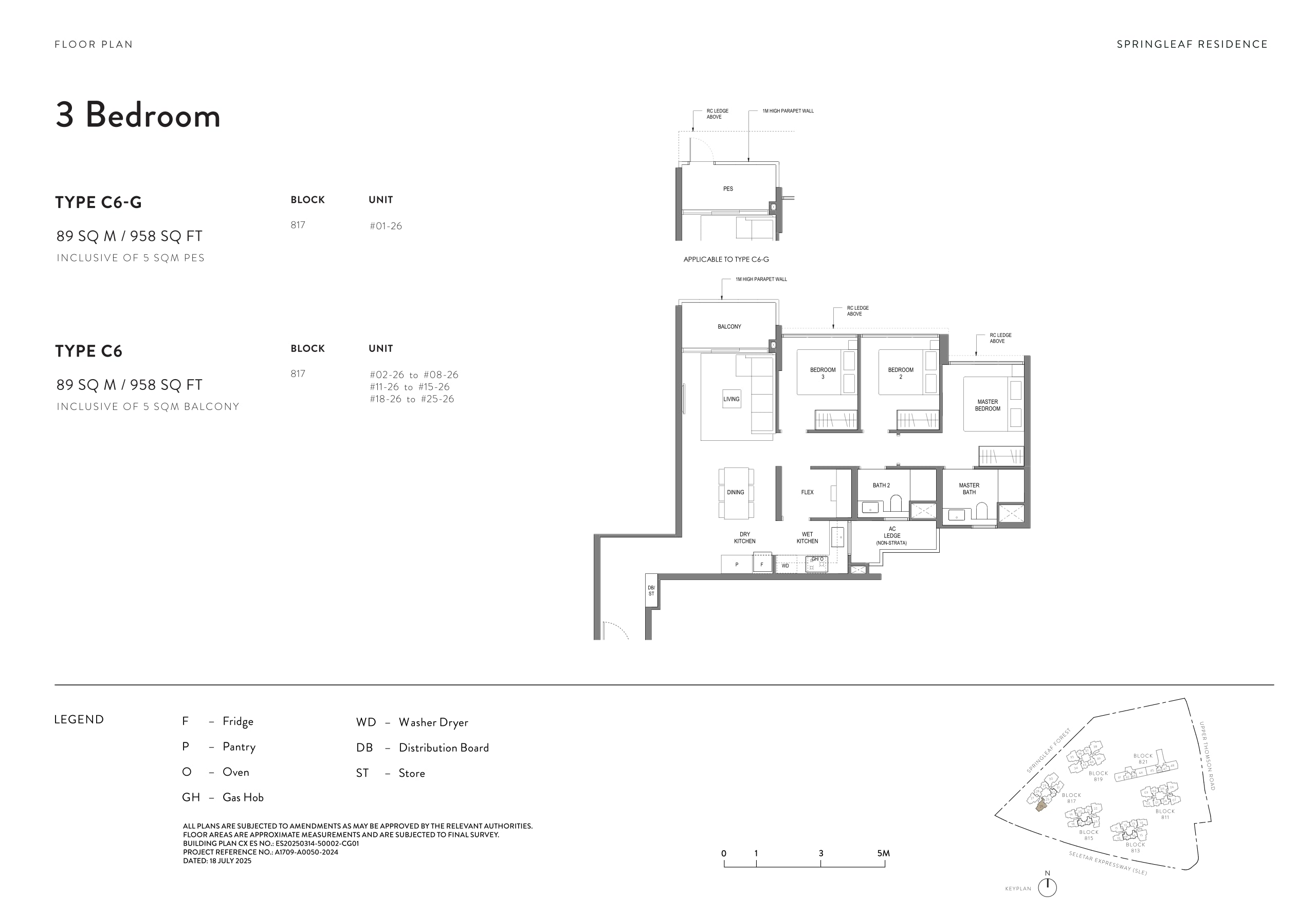
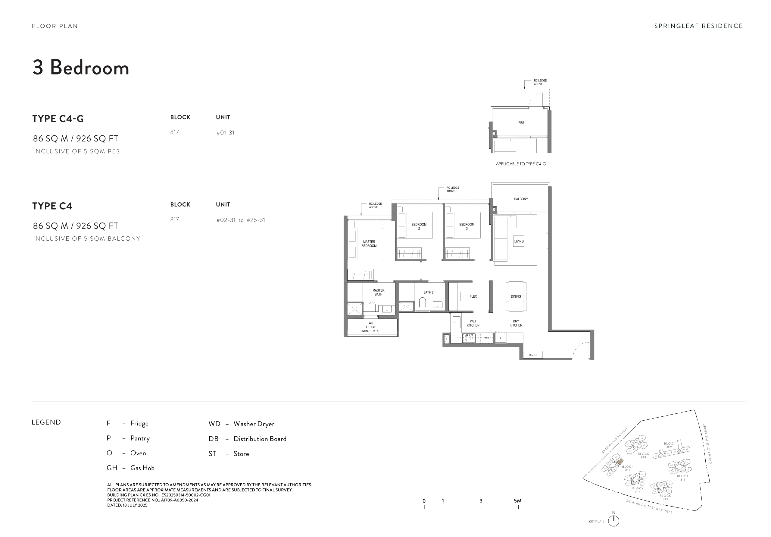
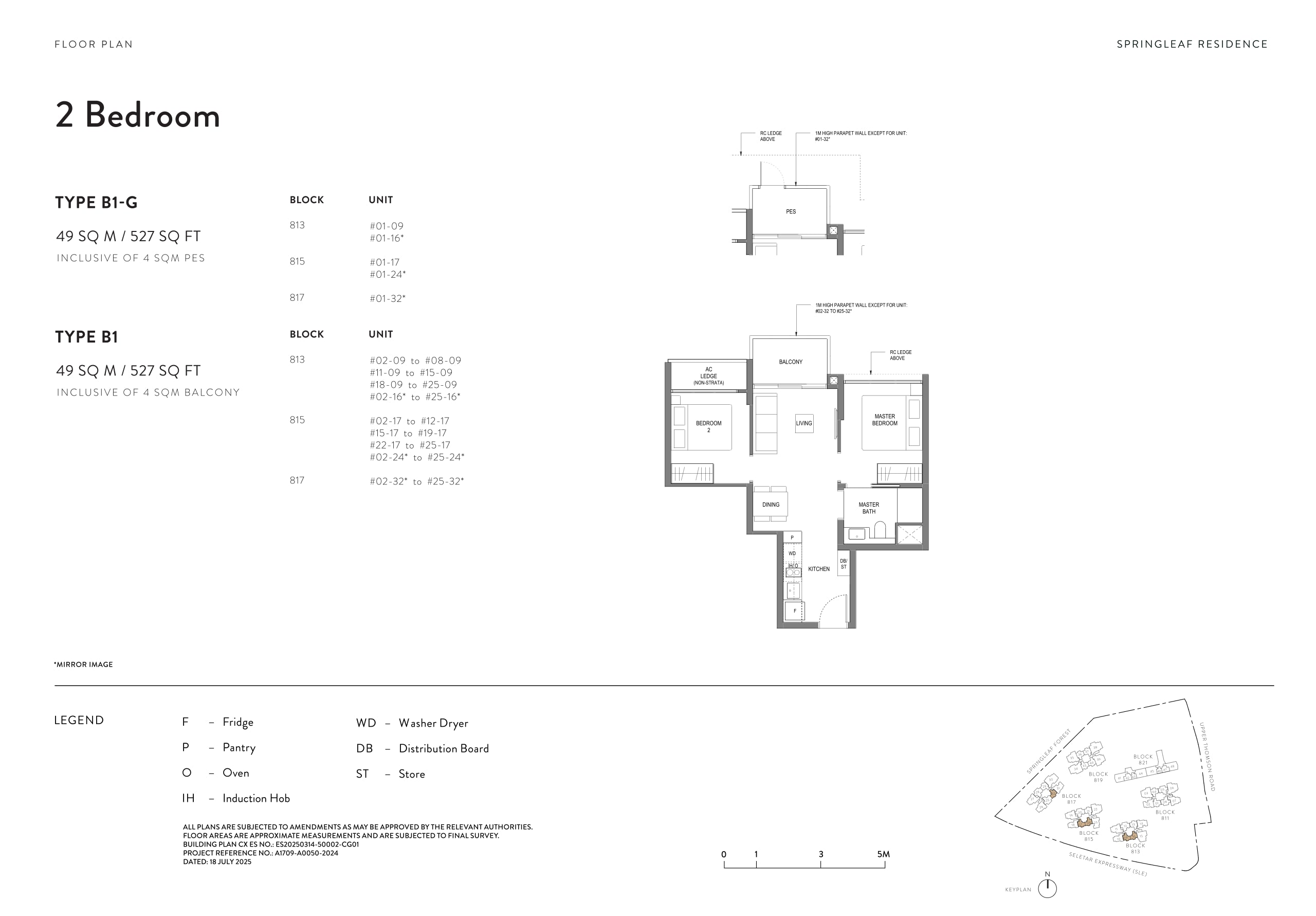
FLOOR PLANS

Each residence is a refined sanctuary, artfully composed to welcome light, air, and openness. Expansive interiors flow with quiet elegance, while select layouts offer bespoke spaces for reflection and study—crafted for those who seek a life of grace, comfort, and distinction.
3 Bedroom

STAR BUY UNITS

1 Bedroom
Size: TBA sqft

from TBA
2 BEDROOM
Size: TBA sqft

from TBA
3 BEDROOM
Size: TBA sqft

from TBA
4 BEDROOM
Size: TBA sqft

from TBA
5 BEDROOM
Size: TBA sqft

from TBA
GuocoLand Limited is a leading real estate group listed on the Singapore Exchange and a member of the Hong Leong Group via its parent company, Guoco Group Limited. With operations spanning Singapore, China, and Malaysia, the Group has earned a reputation for delivering premium residential and mixed-use developments that uplift and transform communities. Its impressive portfolio includes landmark projects like Wallich Residence, Meyer Mansion, and the Lentor series, as well as award-winning integrated developments such as Guoco Tower and Guoco Midtown.
As of 30 June 2024, GuocoLand’s investment properties were valued at S$6.56 billion, reflecting its strength in both property development and investment. The Group’s end-to-end capabilities cover the entire real estate value chain, from planning and design to asset management. With a strategic expansion into the UK and Australia through Eco World International Berhad, GuocoLand continues to cement its position as an innovative and forward-looking player in the global real estate market.

Gallery

VIRTUAL TOUR

Secure Early Bird Discounts

We invite you to register your interest and enjoy priority access to exclusive early bird privileges. Visit our showflat when it officially opens for a personalised walkthrough and experience the thoughtful design and exceptional craftsmanship firsthand. Discover the charm of this distinguished development and take the first step towards owning a home in this serene estate. Early bird privileges are available for a limited period.